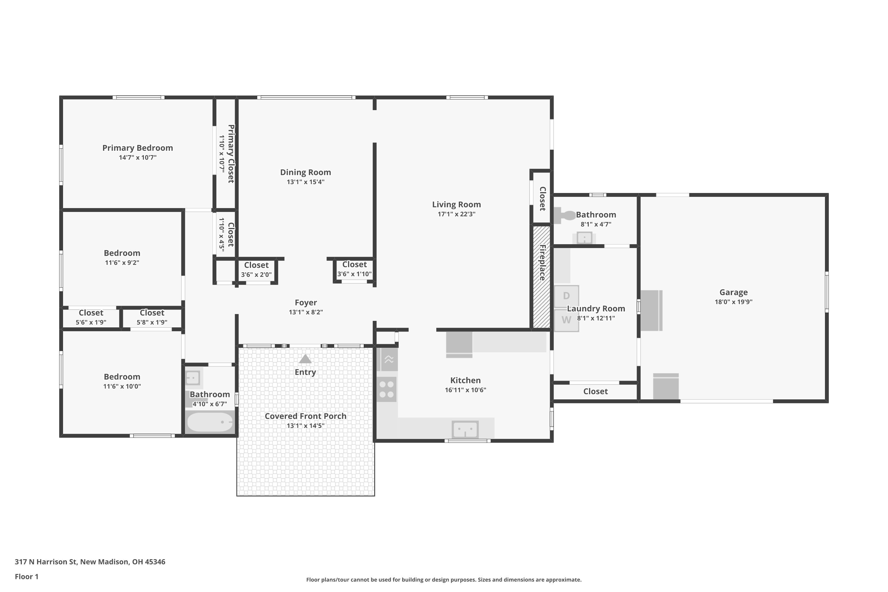
It’s not just the layout or the lot–it’s the way this home has been cared for that sets it apart. From the moment you walk in, there’s an undeniable sense of pride in ownership. Everything feels intentional, tidy, & thoughtfully maintained–the kind of home where you don’t find yourself making a mental list of projects before you’ve even taken your shoes off. Set on a spacious lot in an established setting in New Madison within the Tri-Village School District, this classic brick ranch offers comfortable one-level living w/ a well-designed flow for everyday living–& lives larger than it appears from the outside. The inviting covered front porch welcomes you in, leading to a generously sized living room anchored by a cozy fireplace–an easy, natural gathering space filled w/ natural light & beautiful hardwood floors that carry warmth throughout the home. The dining area connects seamlessly, offering just the right amount of openness while still feeling defined. The kitchen is bright, efficient, & perfectly positioned, w/ space for casual dining & direct access to the oversized laundry/mudroom combo–complete w/ a half bath & entry to the attached 1-car garage for everyday convenience. On the opposite side of the home, you’ll find three comfortable bedrooms, all w/ comfortable room sizes, including a spacious primary, tucked away for privacy, along w/ a centrally located full bath that’s both practical & easy to navigate. Outside, the expansive yard offers a rare amount of breathing room–perfect for entertaining, gardening, playing, or simply enjoying the quiet–w/ room to actually do something w/ it. A fenced patio creates a private outdoor retreat to relax or host, while the shed offers extra storage. Available for all types of financing, making it an excellent option for a wide range of buyers. Well-maintained. Well loved. Move-in ready. & ready for someone new to appreciate it just as much.
