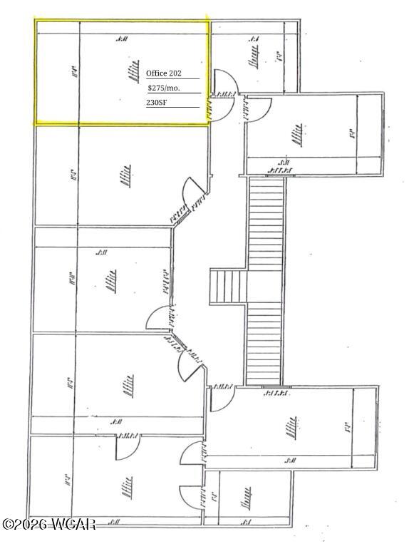
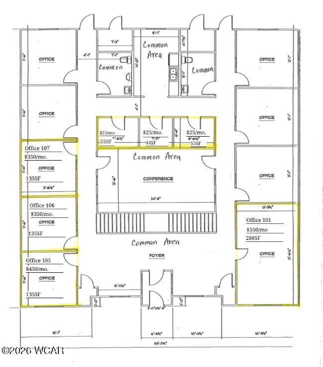
Multi-tenant office condominium has several single offices available to lease. All tenants enter through a shared main entrance that opens to a welcoming reception area. Lease includes use of common area conference room, two restrooms, and ktichenette/breakroom. Ample customer parking in front with additional employee parking in the back. Tenant pays gross lease and internet. Agent owned.
