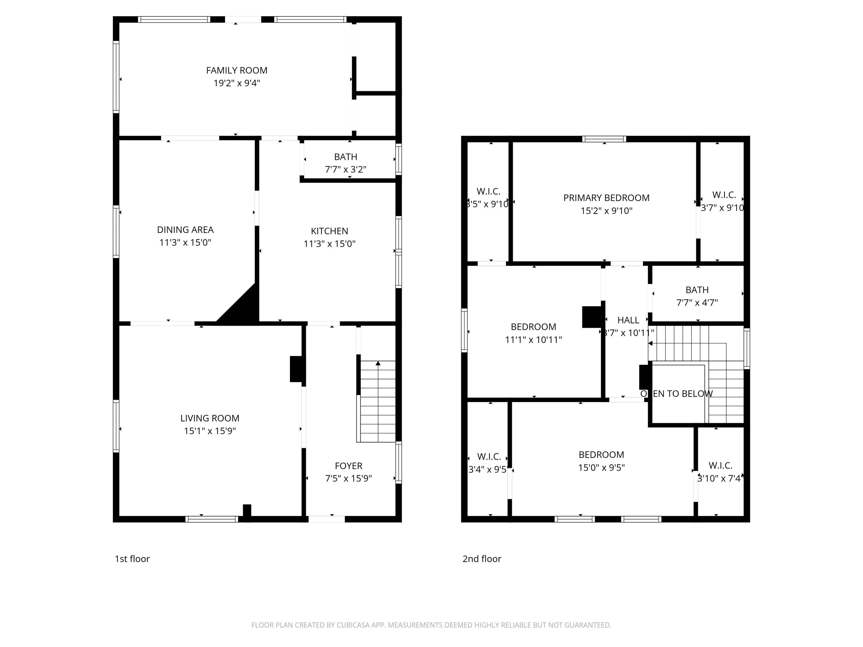
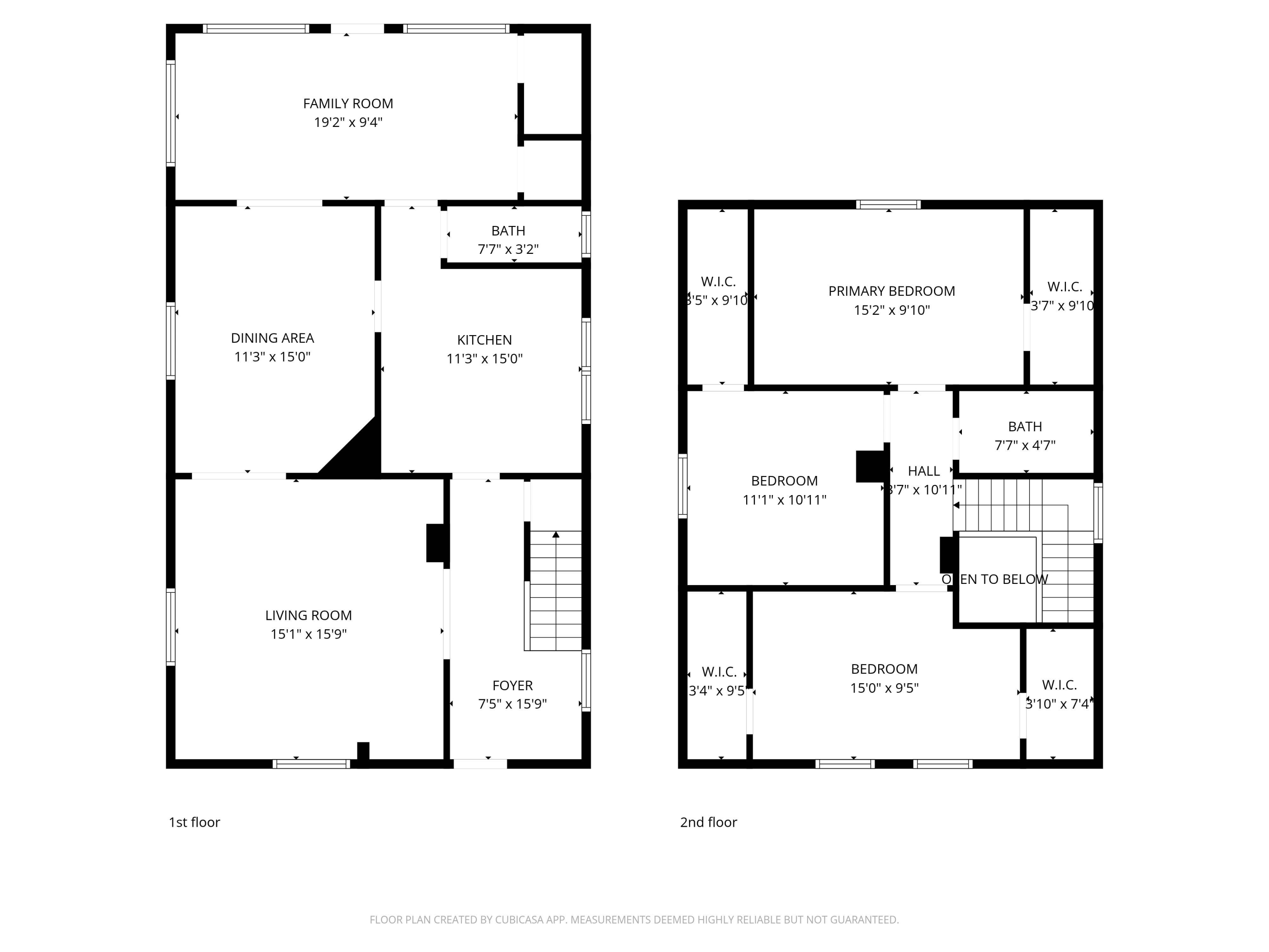
Opportunity awaits with this classic fixer-upper full of charm and character, just waiting for your vision and personal touch. Bring your handyman and decorating skills and transform this older home into something truly special. Offering nearly 1,600 square feet of living space, this 3-bedroom, 1.5-bath home provides a solid foundation and timeless features that make it well worth the effort. A covered front porch welcomes you into the home, leading to a foyer highlighted by an open staircase that showcases the home’s original style. Off the foyer, you’ll find a spacious living room that flows into the dining room, creating a traditional layout ideal for gatherings. The kitchen offers a good amount of cabinetry and connects to a family room at the rear of the main level, providing additional living space. A convenient half bath completes the first floor. Upstairs, you’ll find three bedrooms, some featuring walk-in closets, along with a full bath. The home also includes a full basement, offering plenty of space for storage. Outside, the oversized backyard provides room to relax, garden, or entertain. Additional features include a 2-car detached garage with alley access, as well as a small front driveway for off-street parking. The home is being sold as-is, with no repairs to be made by the seller, and is priced accordingly. Please note that everything currently in the home at the time of showing will remain. This is a great opportunity for investors or for buyers looking to make a home their own.
