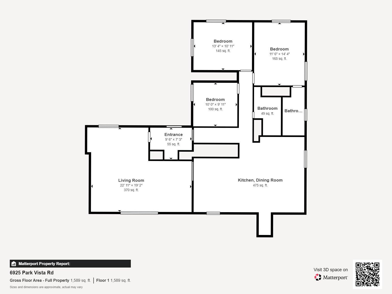
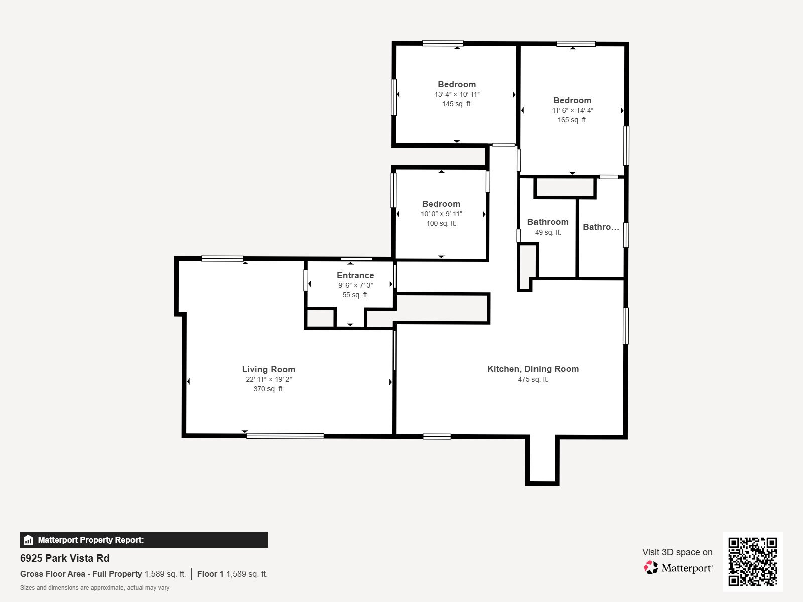
The owner has completed around $50,000 in updates in this desirable ranch in Englewood, located in Northmont Schools. It offers the perfect blend of comfort, style, and everyday functionality. The gourmet kitchen is the heart of the home, featuring a large quartz island with breakfast bar seating, a modern ventilation system, a marble backsplash, pantry storage, and newer stainless steel appliances. This gorgeous kitchen is open to two dining areas and the living room; the layout is ideal for gatherings, large or small. A wood-burning fireplace with built-in bookcases adds warmth and character to the living room. Relax in the sunroom overlooking the privacy-fenced yard, or enjoy cookouts on the patio. With 3 spacious bedrooms, 2 updated baths, new flooring, baseboards, neutral paint, newer windows, A/C, rebuilt furnace, and new garage door and opener, this move-in-ready home is one you will not want to miss. Call today for more details or a private showing.
