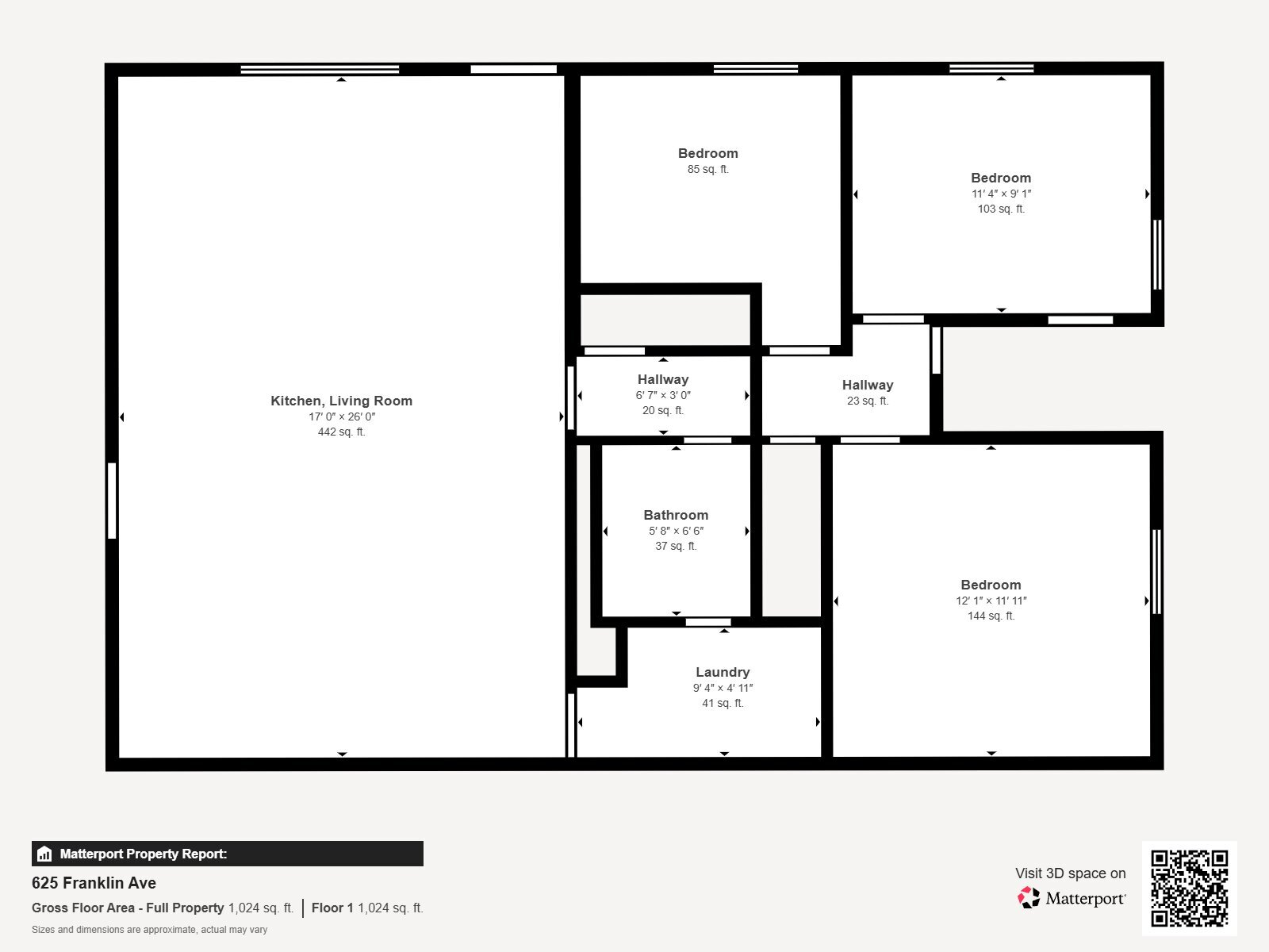
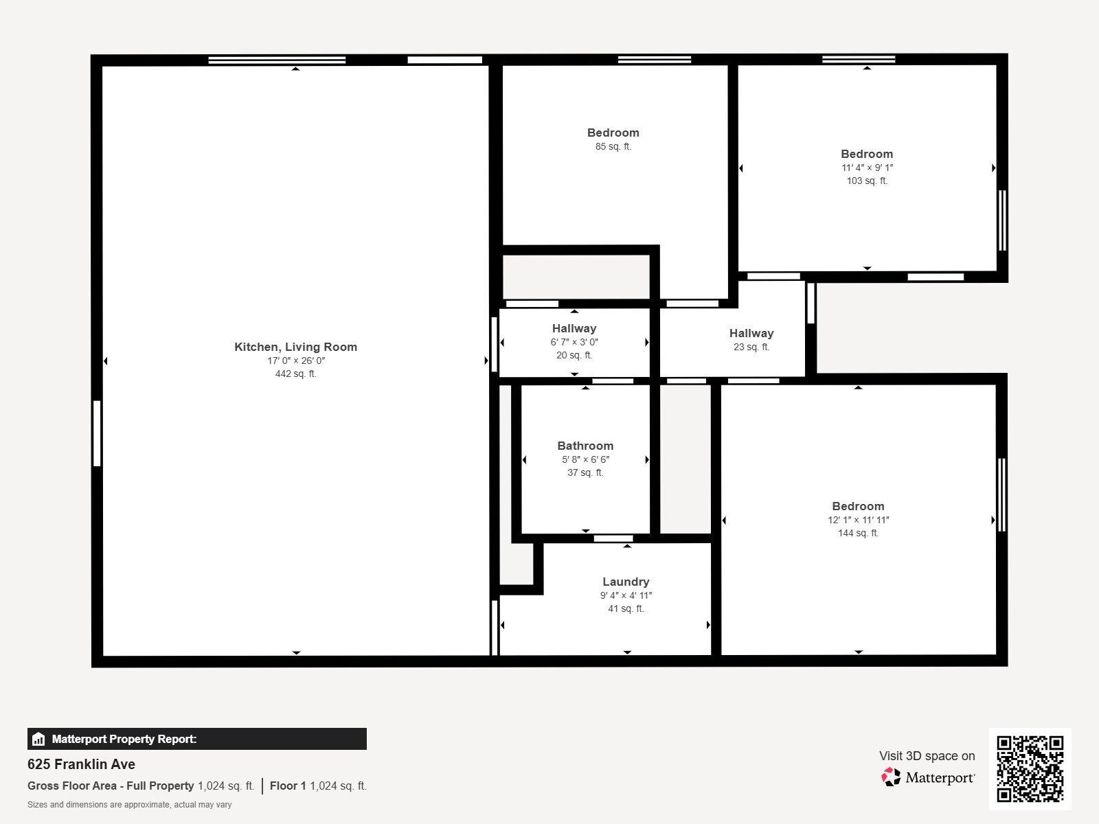
Welcome home to this beautifully updated brick ranch in Union/Englewood, located in the sought-after Northmont School District. From the inviting covered front porch to the fenced backyard, this home offers comfort, value, and everyday ease. The spacious eat-in kitchen serves as the heart of the home, perfect for gathering with family and friends, while the sunny dining area creates a warm, open feel. Thoughtful updates throughout the years mean you can move in with confidence, with recent improvements including HVAC, water heater, carpet, paint, garage door, and exterior doors. All appliances, including washer and dryer, convey. Relax on the covered patio and enjoy the private outdoor space. Whether you’re searching for an affordable place to call home or a smart investment opportunity, this property checks the boxes. Schedule your private showing today.
