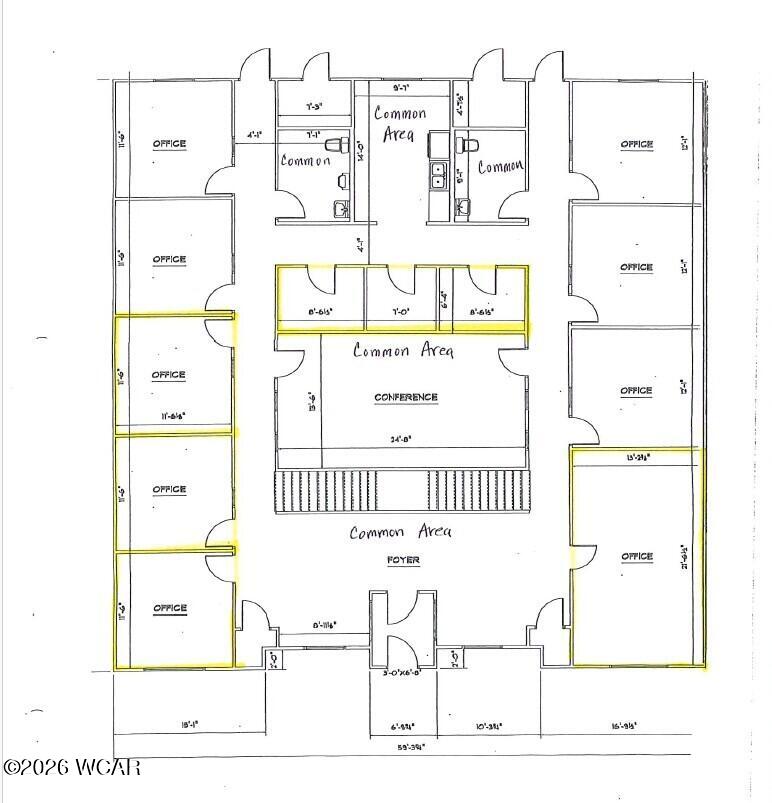
Investment opportunity awaits! This office building is part of an office condominium featuring multiple professional tenants. All occupants enter through a
shared main entrance that opens to a welcoming reception area, stately conference room, kitchenette, and restrooms. All but five offices are currently leased, creating a strong
and steady revenue stream. Tenant rights prevail. The property offers low maintenance ownership, with an annual condominium fee that covers snow removal and lawn care.
Leases are gross, with tenants responsible for their own internet service. This set-up is perfect for an owner-operator.
