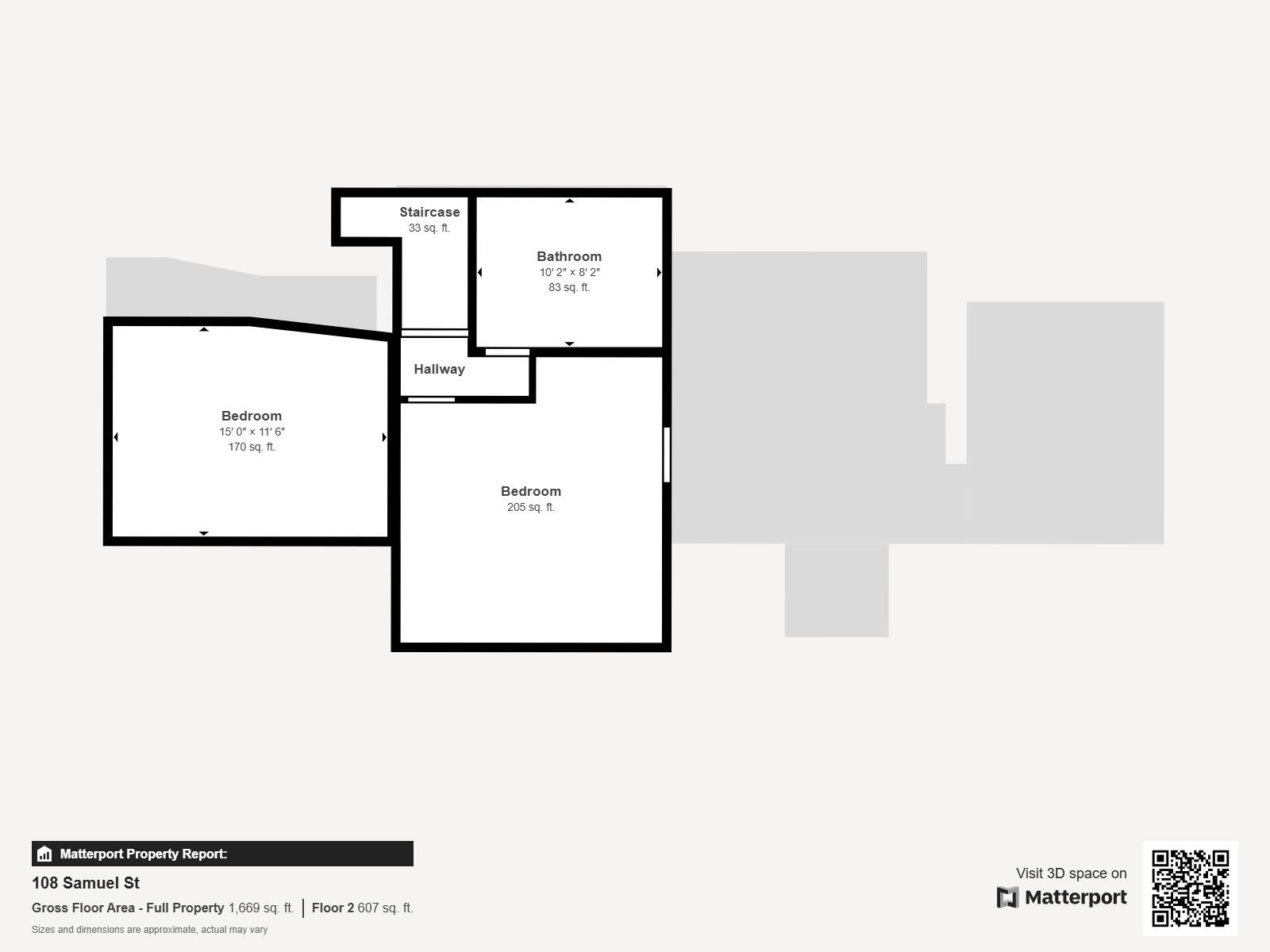
Check out this charming 3-Bedroom historic home with modern elegance! Built in 1919, this home blends historic charm with modern luxury. Stepping in the front door you will immediately be blown away by the high ceilings, custom crown molding, rich engineered hardwood floors and exquisite finishes throughout! The modern kitchen is a true showstopper, featuring a large island with waterfall-edge quartz countertops, sleek cabinetry, designer lighting and new stainless steel appliances! Outback you will discover your true PRIVATE oasis. Plenty of room for entertaining or relaxing in privacy, including a fenced yard, deck, turf grass area, and oversized 2-car garage. Every single inch of this home has been meticulously updated including: New exterior Stucco, ROOF, PLUMBING, ELECTRIC, HVAC, WINDOWS, FLOORING, NEW DOORS AND TRIM, KITCHEN and BATHROOMS and more. Located just blocks away from Dayton’s Historic District, Restaurants, Nightlife, Highway access and much more!!
