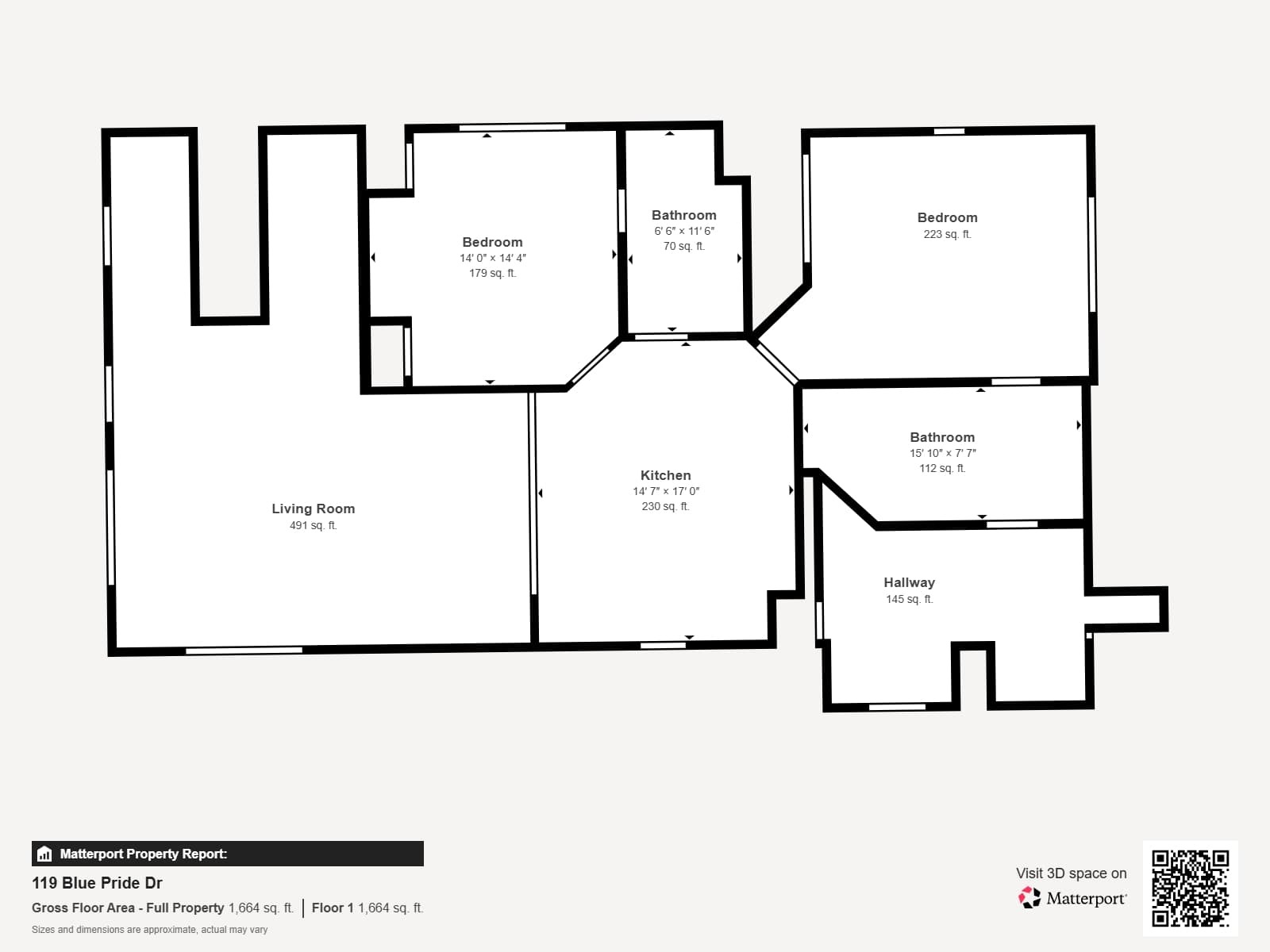
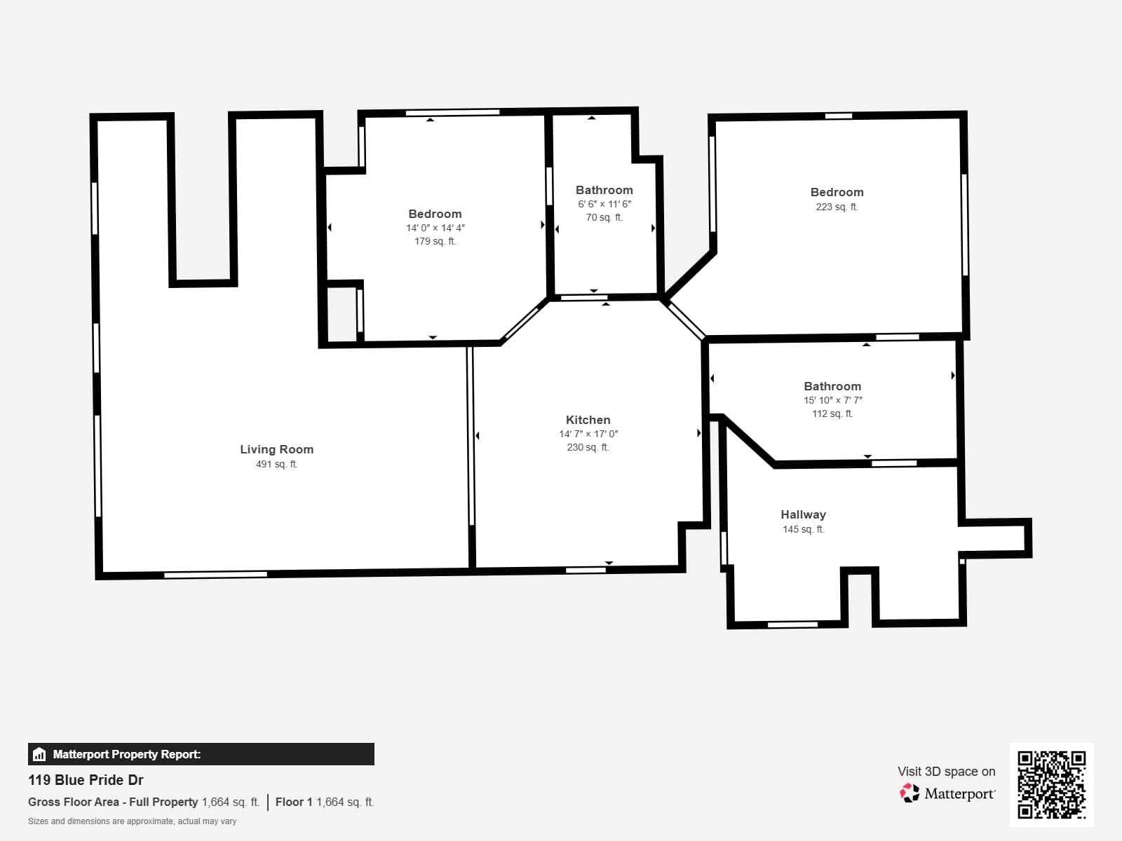
Welcome home to this one-of-a-kind, beautifully remodeled 1,736 sq/ft Craftsman-style ranch, perfectly situated on three quarters of an acre and just a short walk from the library, park, walking track, and school. Custom built with energy efficiency in mind, this home includes GeoThermal heat and thoughtful design throughout.The interior features engineered hardwood flooring that flows through the open floor plan. High ceilings and a double-sided fireplace create a warm and inviting atmosphere, ideal for both cozy nights in and family gatherings. The kitchen offers a butcher block countertop, an oversized island, and plenty of room for cooking and entertaining. This 2 bedroom, 2 bathroom home includes wide 36” doors (handicap accessible) for easy access. The primary suite includes a private patio access and a spacious custom shower with overhead shower head and modern finishes. Large privacy windows fill the home with natural light, while updated exterior paint, trim, and leaf guards add convenience and great curb appeal. Enjoy your morning coffee on the charming front porch or fire up the grill on the covered back patio. The attached 3-car garage includes built-ins for storage, plus a third garage door at the back–perfect for easily storing lawn equipment or outdoor toys. With unique style, incredible updates, and a truly special location, this property is ready to welcome its next owner. Don’t wait–homes like this don’t come along often!
