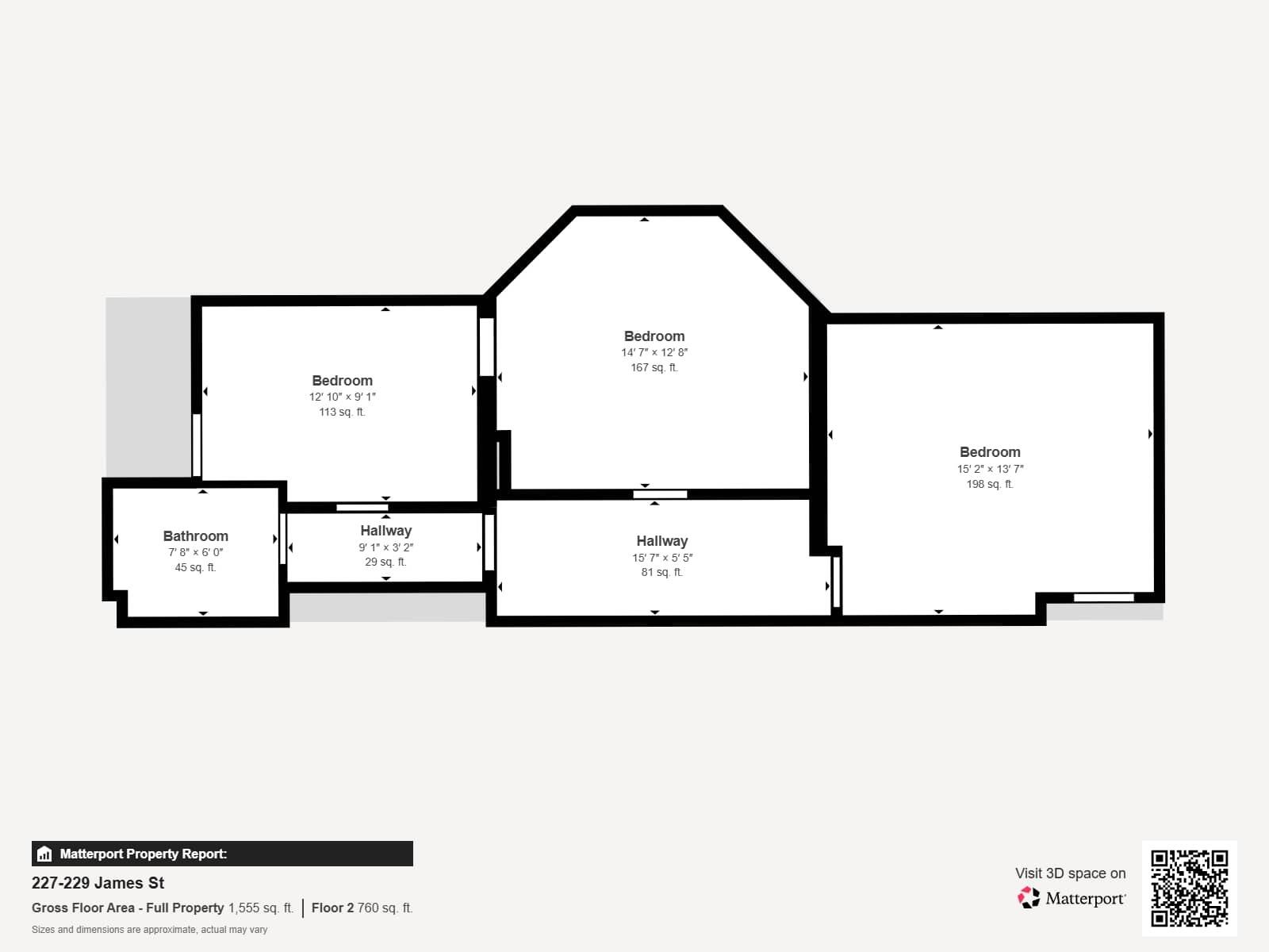
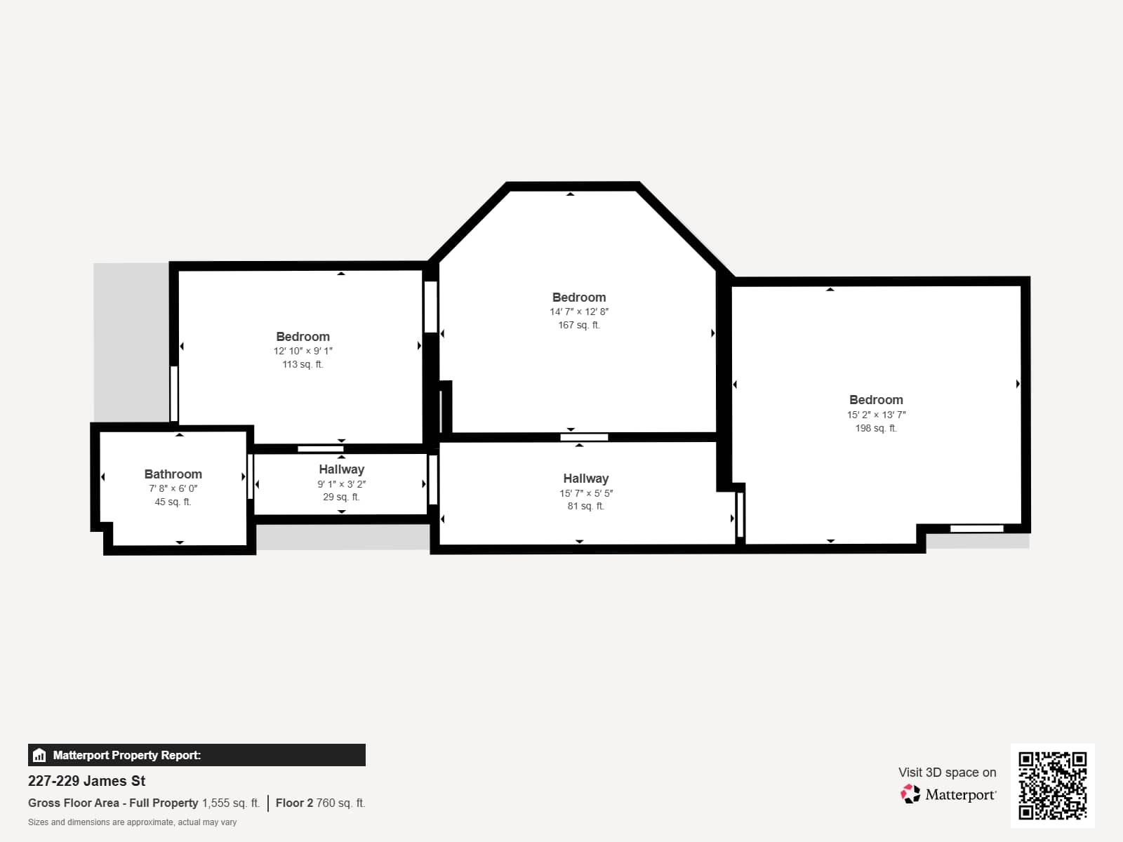
In the heart of Dayton’s South Park Historic District, this stately stucco duplex blends timeless charm with thoughtful updates. Each unit offers about 3 spacious bedrooms, a beautifully updated bath and a modernized kitchen with appliances, including washer/dryer, while preserving original wide wood trim and high ceilings that echo the home’s heritage. The vibrant, walkable neighborhood places you just steps from scenic parks, historic streetscapes, and a strong sense of community. Conveniently located near highway access and Downtown Dayton venues including DayAir Ballpark, Second Street Market, and the Oregon District. Whether you’re seeking a smart investment or the ideal owner-occupied setup with income potential, this home delivers both lifestyle and legacy. Schedule your private showing today and step into a piece of Dayton’s history! New AC in 2022 for unit 227; AC in 2020 for unit 229; Roof replaced 2009, updated electric panels, new storm windows and doors in 2008.
